
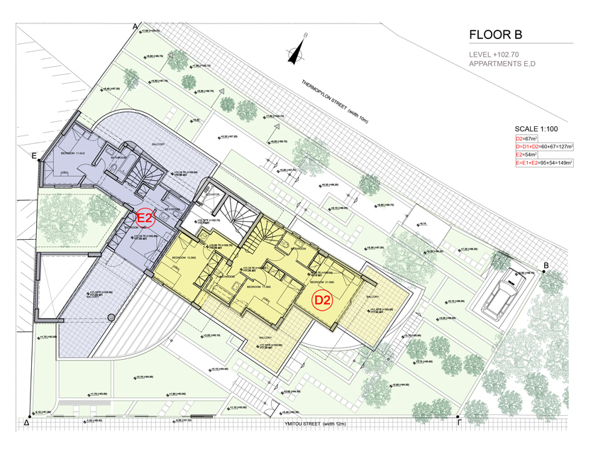
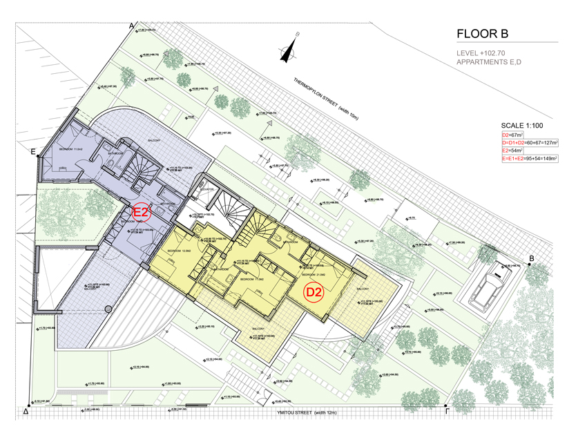
The specific apartments are located in Panorama – Voula, a suburb on the southern side of Athens. The site is on a cliff at the foot of mount Imittos. The building is of a distinctive trapezoid shape. Its north and south side open onto low traffic roads. While its west side is adjacent to a neighboring house, and its east side to a green public area. Moreover, the main façade of the building faces south and provides unobstructed views to a densely vegetated park, and partial views to the sea. Each apartment is about 150m2 and develops into two floors which are connected via an internal staircase. With windows on all sides, natural cross ventilation and lighting are achieved. Furthermore, each flat has been allotted large balconies and private green gardens to utilize the pleasing surrounding elements to the best degree possible. As a result, the relationship between indoor and outdoor space is emphasized, and outdoor activities are encouraged.